Overview
Property Description
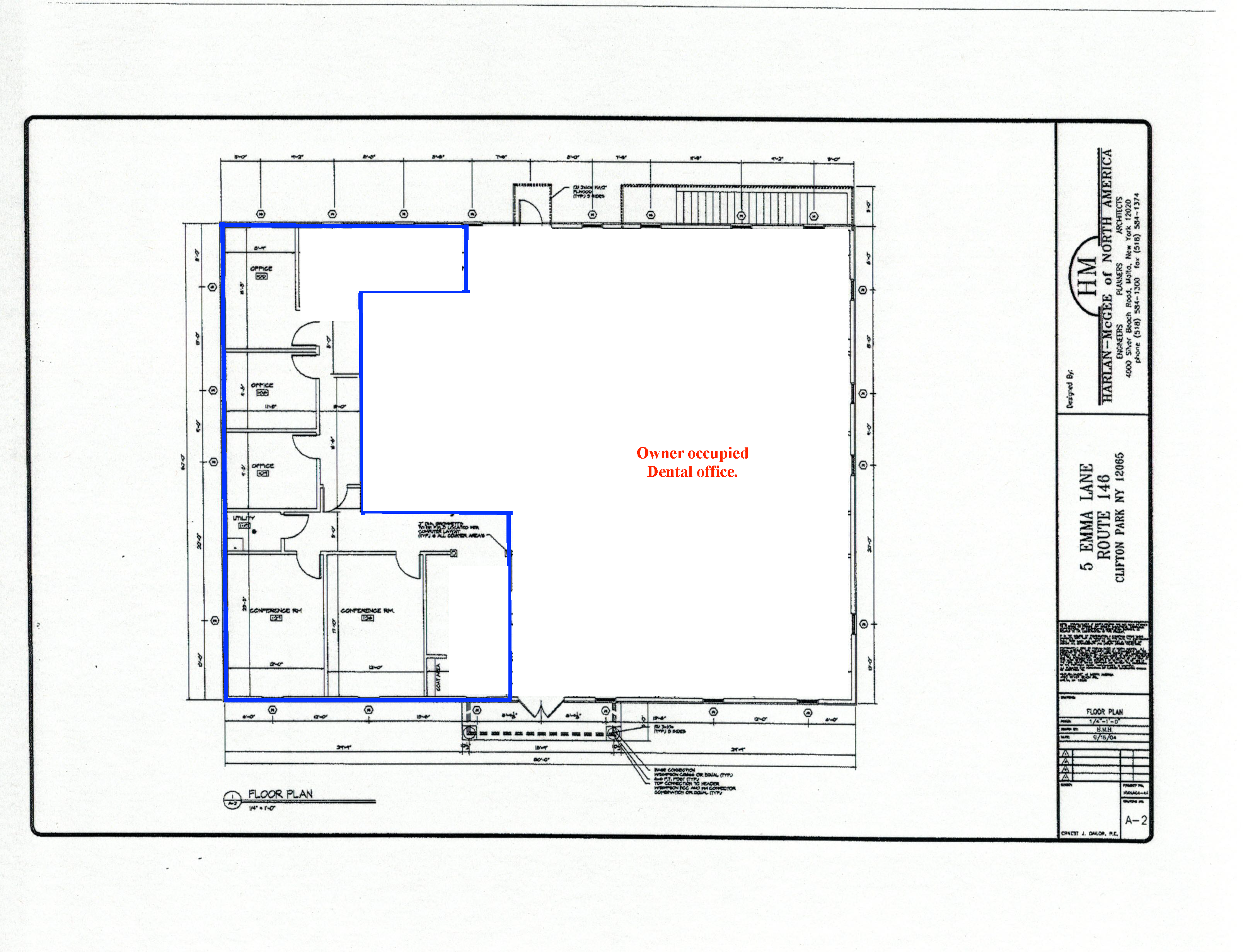
- Brand new renovation – space being upgraded alongside owner-occupied dental practice.
- Private entrance for tenant.
- Dedicated reception / waiting area.
- (4) private offices + conference room.
- Ideal for medical, professional, or service-based users.
- Office park setting in established Emma Lane Professional Park.
- Ample on-site parking for employees and clients.
- Convenient access to I-87 (Exit 9) and Route 9 corridor.
- Surrounded by retail, dining, and business amenities.
- AVAILABLE SPACE:
- ±1,500 SF professional office suite










